信息公開
招租公告
慶城農貿市場店面、倉庫出租,位于福州市井大路22號,道路交通便利、位置獨特,適用于超市式農貿市場經營。報經中國(福建)對外貿易中心集團有限責任公司批準后,面向社會公開招租。現將相關事項公告如下:
一、公開招租資產基本情況:
1、產權單位:福建省地方經貿有限公司。
競租組織單位:福建省鄉總農業集團有限公司
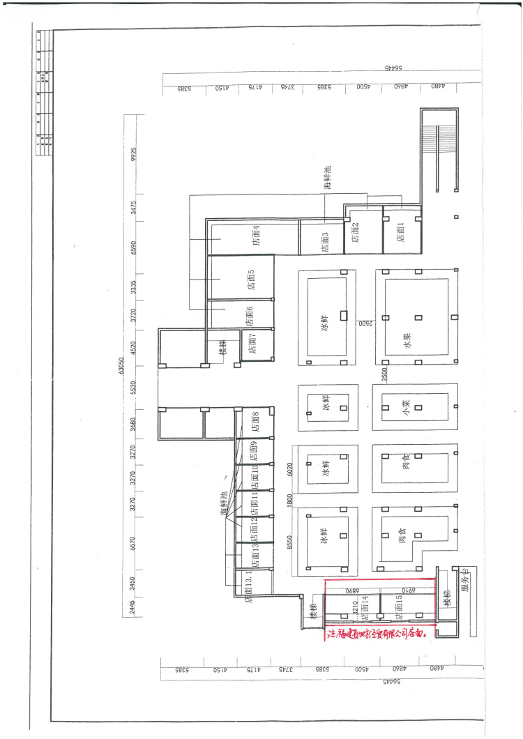
2、標的物:店面、倉庫總面積:779.14㎡。
(詳見農貿市場平面圖)
3、坐落位置:福州市井大路22號。
4、租賃期限:三年。第一年制定目標租金(含管理費)以中標的最終中標價為準,第二年在第一年的基礎上遞增2%,第三年在第一年的基礎上遞增5%。
5、租賃物用途:以超市式農貿市場為主,不得自行改變用途。禁止經營有空氣污染、水污染、噪聲污染、有廢氣、毒氣、易燃易爆危險物品等有關的行業。二樓倉庫僅可用于儲存干燥、無腐蝕性產品。不得影響附近單位及居民的正常工作及生活。
二、競租對象:
中國境內公司、企業、其他組織和具有民事行為能力的自然人(法律另有規定者除外)均可報名參加。
三、報名條件:
報名者需提交合法的身份證明(企業單位、其他組織競租人需提供營業執照副本原件及復印件、法定代表人或負責人身份證明書原件及復印件、法定代表人或負責人身份證復印件,自然人競租人需提供自然人身份證原件及復印件),同時憑產權單位審核通過的招租報名表參加。(被相關監管部門及我司認定為嚴重違約且不整改的經營者不予報名)
四、招租事項:
1、承租人在租賃期間對租賃標的裝修改造時,需要先將方案交出租人審定,施工時不得對租賃標的結構進行破壞性改造;
2、招租方式:公開招租,現場競價一輪,價高者得。
3、競租保證金:為了保證競租的嚴肅性,每個店面收取競租保證金2萬元、每個倉庫和每個攤位收取競租保證金1.5萬元(有多個需求的,應按要求分筆繳納競租保證金)。若競租成功,競租結束后且與招租人簽訂租賃合同后五個工作日內,競租保證金予以無息退還。若競租不成功,競租結束后五個工作日內,競租保證金予以無息退還。
4、標底:按不同店面、攤位、倉庫確定。攤位的劃分、標底的底價在2024年01月17日12:00前在慶城市場公布。
5、競租人在競價成功后五個工作日內,須與招租人簽訂租賃合同,超出期限未簽約者視同放棄并且沒收競租保證金。
五、報名時間:
1、從2023年12月29日8:30起至2024年01月19日17:30時止,報名時需按報名條件提交報名材料(若非自然人,則需在報名材料上加蓋公章并由法定代表人或負責人簽字;若是自然人,則需由自然人在報名材料上簽字)。公開競價時間在2024年01月29日上午9:30。報名截止日前應交足競租保證金到競租組織單位指定賬戶(其他事項須知中第1小點),未按規定繳交的,取消競租資格。
2、報名地點:慶城市場管理中心
公開競價地點:福州市鼓樓區五四路130號閩江飯店15層西湖廳
公開競價時間:2024年01月29日上午09:30
3、聯系人:王青、林鍵
4、聯系電話:13696839362、13559437545
六、其它事項須知:
1、競租保證金交納方式:銀行轉賬。
收款賬戶名稱:?福建省鄉總農業集團有限公司???
開???戶???行:?招商銀行股份有限公司福州分行????
帳????????號:?5919?0274?5310 608?
備 ????注:競租保證金
2、標的物不接受聯合報名,資產面積以實物為準,競租人憑《競租資格確認書》可帶一名助手進場競租。
3、競得人與產權單位簽訂《租賃合同》時繳清相應押金、租金和管理費。
?
? ? ? ? ? ? ? ? ? ? ? ? ? ? ? ? ? ? ? ? ? ? 福建省地方經貿有限公司
? ? ? ? ? ? ? ? ? ? ? ? ? ? ? ? ? ? ? ? ? ? ? ?2023年12月28日





閩公網安備35090202000177號